Logement réservé par Action Logement, pour candidater merci de vous diriger vers www.al-in.fr
Pour une personne seule ou un couple, cet appartement T2 offre un cadre de vie confortable et fonctionnel, à proximité des commodités et des transports.
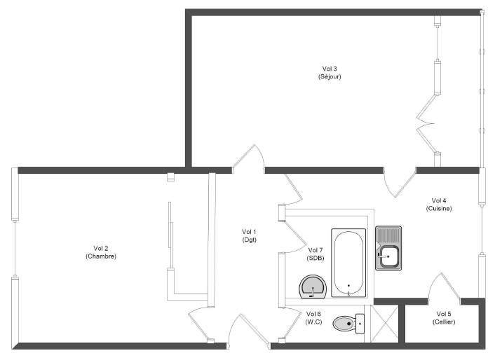
📐 Description du bien :
📍 Localisation : Dole, proche médiathèque, commerces, écoles, bus...
🔑 Caractéristiques :













